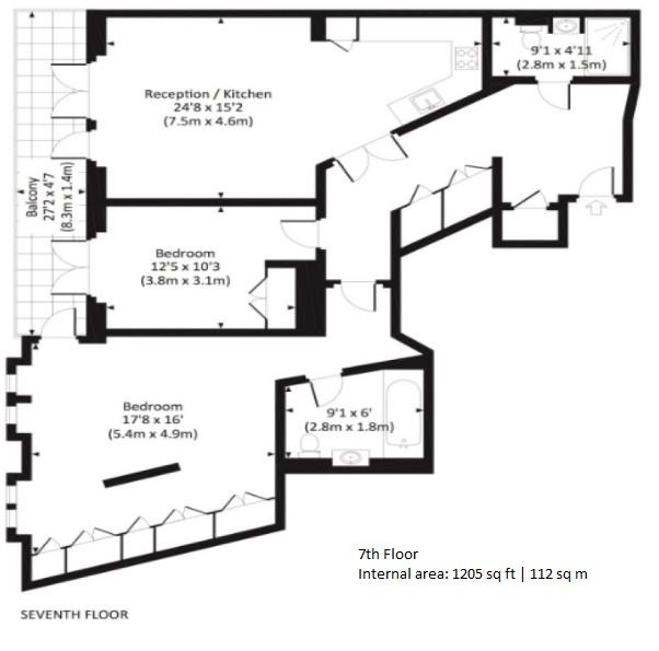
An exceptional two-bedroom apartment spanning approximately 1,205 sq ft (112 sqm), located on the 7th floor (with lift) of the prestigious Abell House development by Berkeley Homes. This highly sought-after residence offers unparalleled living in the heart of Westminster, moments from the River Thames, the Houses of Parliament, and the Tate Britain.
Key Features:
Exclusive Resident Amenities:
Prime Location:
Abell House is ideally situated within walking distance of the vibrant Victoria Street shopping district, with its array of retail, dining, and entertainment options. The development is also conveniently close to Victoria, Westminster, and Pimlico stations, providing excellent transport links across London and beyond.
Additional Information:
This is a rare opportunity to own a luxurious apartment in one of Westminster’s most desirable developments. Book your viewing today!
Under the Consumer Protection Act 1987 we endeavour to make our sales details accurate and reliable but they should not be relied upon as statements or representations of fact and they do not constitute any part of an offer of contract. The seller does not make any representations to give any warranty in relation to the property and we have no authority to do so on behalf of the seller. Services, fittings and equipment referred to in the sales details have not been tested (unless otherwise stated) and no warranty can be given as to their condition. We strongly recommend that all the information which we provide about the property is verified by yourself or your advisers.
Under the Estate Agency Act 1991 you will be required to give us financial information in order to verify your financial position before we can recommend any offer to the vendor.

Fill in your details below to request a viewing.